156 Kupe Drive, Whitianga

FOR SALE

Brand new coastal lifestyle home

This modern, sustainable home doesn't compromise on luxury....

Welcome to your Whitianga Coastal paradise

Positioned in the latest development of the sought-after Whitianga Waterways, this brand new 182m² home offers the ultimate blend of coastal lifestyle, quality craftsmanship, and effortless modern living.

Located at 156 Kupe Drive, Whitianga, this thoughtfully designed home captures everything that makes the Coromandel lifestyle so desirable - space, light, indoor-outdoor flow, and relaxed living.

With a 600m² site and Code of Compliance issued (17/11/25)
This move-in-ready home eliminates the stress of building while delivering the premium finish HAMR Homes is known for.
156 kupe drive 6

Designed for Whitianga living

This is more than a house - it’s a lifestyle.
Imagine:
Morning coffee on the kwila deck
Entertaining friends in the open-plan living area
Boating, fishing, or relaxing just minutes from your door
Lock-up-and-leave ease for Auckland, Waikato, or BOP buyers
Whether you’re relocating, investing, or securing a coastal retreat, this home is designed to maximise comfort and connection to its surroundings.
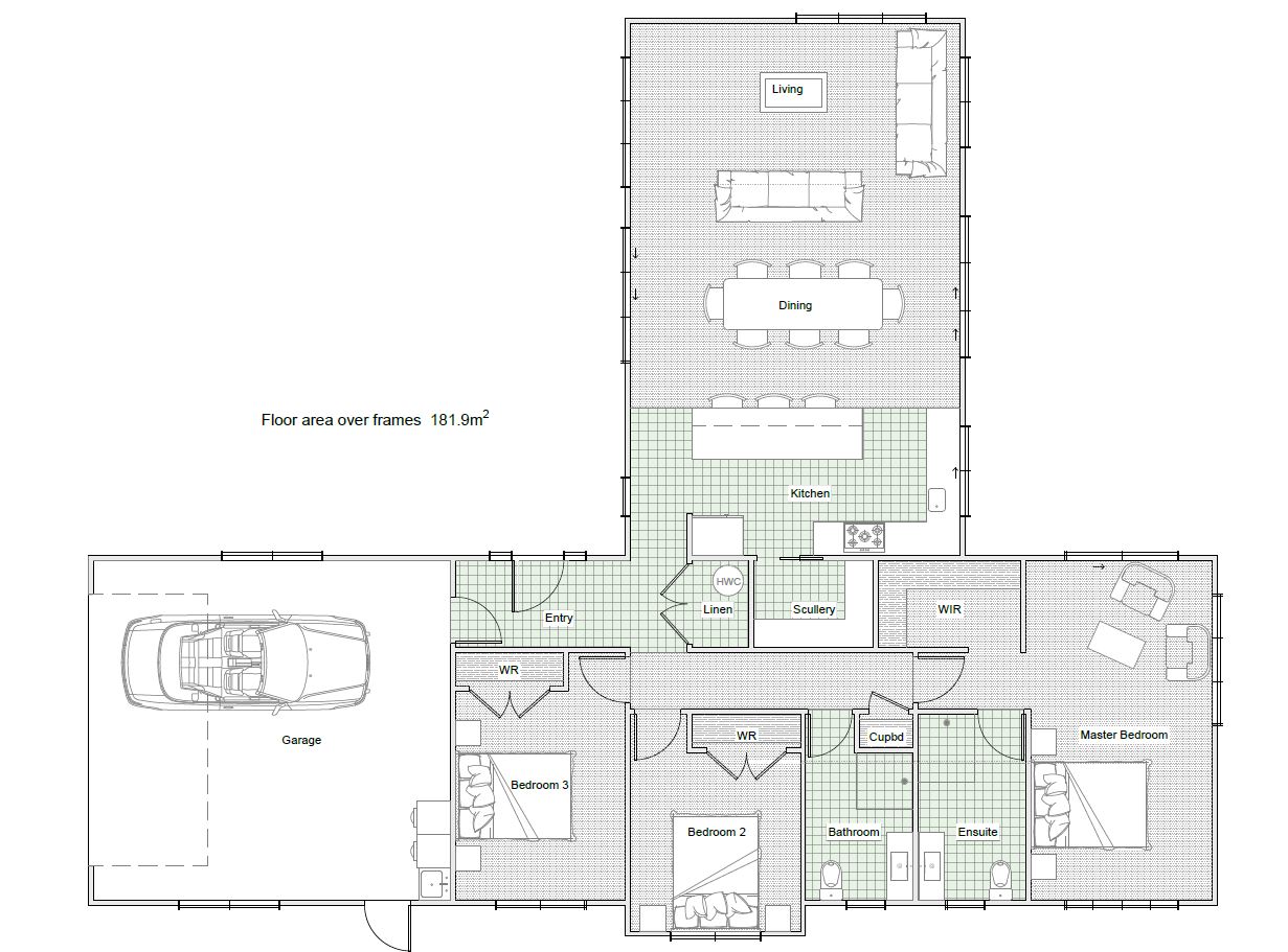
Floor plan 156 kupe

Key features and highlights

182m² floor area on a 600m² site
Custom designer kitchen with Dekton “Silver Koast” benchtops & 'Hidden Pantry'
Quality Fisher & Paykel appliances including quad-door fridge & induction hob
Engineered Oak flooring throughout main areas
Heated LED mirrors and gunmetal Methven Waipori tapware
Insulated, carpeted garage with insulated door
Kwila decks with stainless steel fixings
Coloursteel roofing in Gull Grey
*Window Coverings, Furniture package, Landscaping is available on request.
Every finish has been selected to reflect timeless coastal style with a modern edge.
Download the full spec sheet here
156 kupe drive 38156 kupe drive 9156 kupe drive 1156 kupe drive 47

Proudly built by the Coromandel’s most awarded Master Builder

HAMR Homes has built its reputation on quality, integrity, and craftsmanship. This home reflects that commitment - combining durability with refined design, perfectly suited to the Whitianga Waterways environment.

Move-in ready | Asking Price

 $1,199,000

A rare opportunity to secure a brand-new Waterways home in Whitianga without the delays and uncertainty of building yourself.

Enquire for a Private Viewing

Discover what Waterways living truly feels like.
156 Kupe Drive, Whitianga

021 494 474

[email protected]
Private viewings by appointment only.
Call Now To View
crossmenuchevron-up